Portfolio
About
Works
Artworks
Architecture
Contact
Ventilation Plan
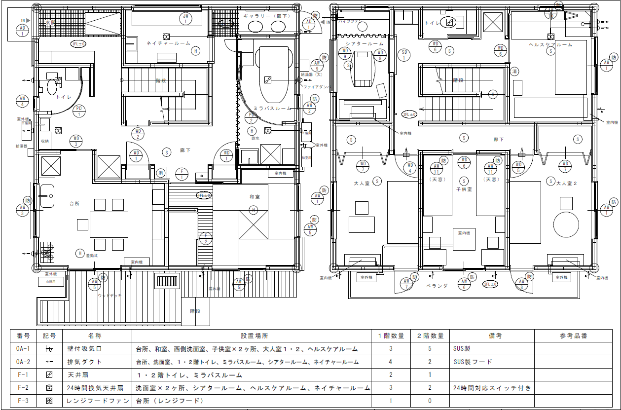
換気計画
概要
自身で設計した2階建て木造住宅の換気計画
縮尺
1/50
使用ツール
Jw_cad 10.01
制作時間
3時間
PDFのダウンロードはこちら↓
ダウンロード