Portfolio
About
Works
Artworks
Architecture
Contact
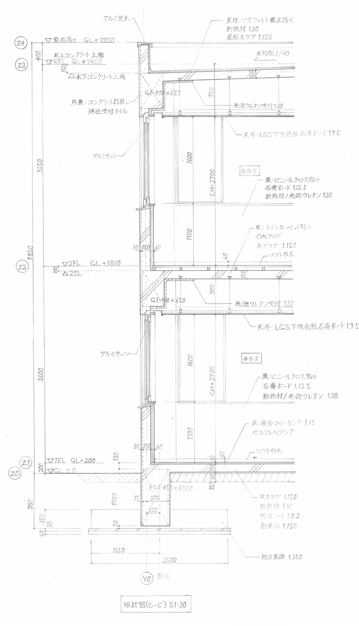
Sectionaldetail
矩計図
概要
2階建てRC造貸事務所の矩計図
縮尺
1/30
使用ツール
ステッドラー製図用シャープペンシル0.5
制作時間
6時間
PDFのダウンロードはこちら↓
ダウンロード