Portfolio
About
Works
Artworks
Architecture
Contact
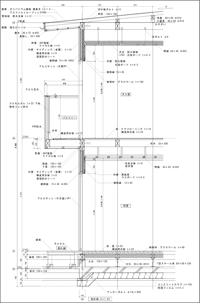
Sectional Detail Plan
矩計図
概要
自身で設計した2階建て木造住宅の矩計図
縮尺
1/20
使用ツール
Jw_cad 10.01
制作時間
8時間
PDFのダウンロードはこちら↓
ダウンロード