Portfolio
About
Works
Artworks
Architecture
Contact
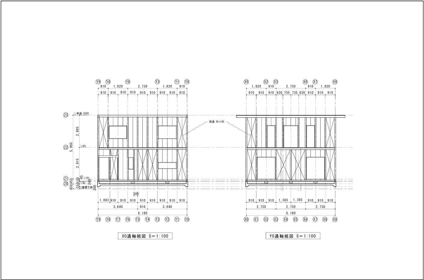
Frame Diagram
軸組図
概要
自身で設計した2階建て木造住宅の軸組図
縮尺
1/50
使用ツール
Jw_cad 10.01
制作時間
4時間
PDFのダウンロードはこちら↓
ダウンロード