Portfolio
About
Works
Artworks
Architecture
Contact
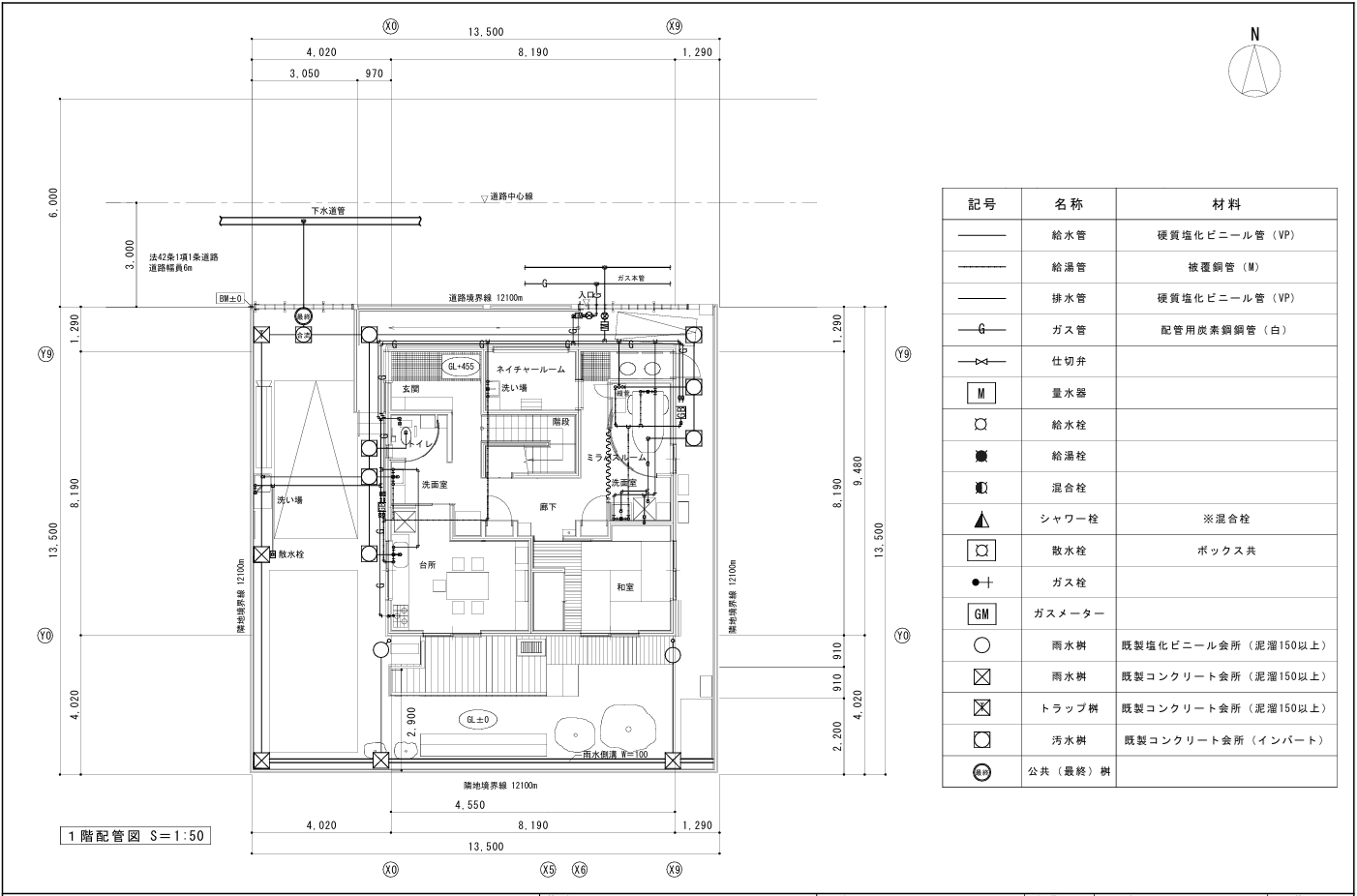
First floor Piping Plan
1階配管図
概要
自身で設計した2階建て木造住宅の1階配管図
縮尺
1/50
使用ツール
Jw_cad 10.01
制作時間
7時間
PDFのダウンロードはこちら↓
ダウンロード